施設のご案内 OUTLINE
JIYUGAOKA
創の実 自由が丘
2017 OPEN
JIYUGAOKA
東急東横線・大井町線「自由が丘」駅から徒歩5分。 有名インテリアショップやファッションブランドの旗艦店が立ち並ぶ活気あるバス通りに面した抜群の好立地です。

| 業種 | 小売・サービス業 |
|---|---|
| テナント数 | 3店舗(3事業者) |
| 出店費用 | 36,300円/月(税込) ※別途商店会費、水道光熱費 |
| 出店対象者 | 成人女性 または募集年度末時点で39歳以下の男性 |
| 出店期間 | 6ヶ月 ※審査により1回更新可。最長1年間。 |
| 出店方法 | 出店者募集の際は「お知らせ」ページでご案内します |
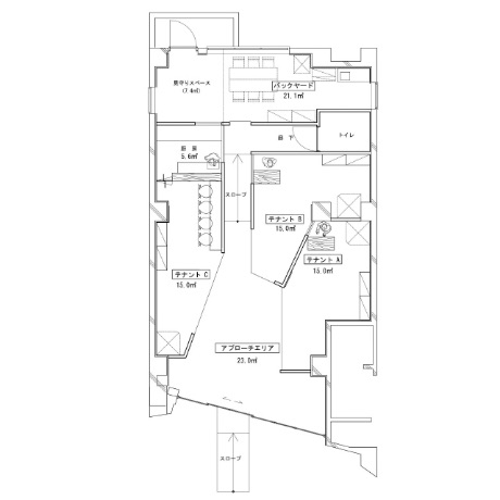
テナントスペース
エントランスを3つのテナントが囲み、回遊性の高いレイアウトとなっています。
(1スペースあたり13.6平米)
キッズスペース
未就学児(1歳以上)を持つ出店者は店内バックスペース内キッズスペースにて見守りベビーシッターが利用可能。
子どもを持つ女性の社会進出を応援しています。
共通基本設備
- 陳列棚(壁づけ)
- フィッティングルーム
- スポットライト
- POSレジ(ドロワー、レシートプリンター込み)
- Wi-Fi
- A看板
- ワークショップ用テーブルおよび椅子6脚
- シンク、冷蔵庫、電子レンジ、湯沸かし器
- 防犯カメラ(24時間録画)
※詳細はお問い合わせください。
IMAGE MOVIE
イメージムービー
KICHIJOJI
創の実 吉祥寺
2018 OPEN
KICHIJOJI
JR中央線・京王井の頭線「吉祥寺」駅 南口から徒歩4分。 カフェや雑貨のおしゃれな路面店が立ち並び、 多くの人が行きかう人気エリアです。 井の頭公園にほど近く、幅広い客層が見込めます。

| 業種 | 小売・サービス業 |
|---|---|
| テナント数 | 3店舗(3事業者) |
| 出店費用 | 36,300円/月(税込) ※別途商店会費、水道光熱費 |
| 出店対象者 | 成人女性 または募集年度末時点で39歳以下の男性 |
| 出店期間 | 6ヶ月 ※審査により1回更新可。最長1年間。 |
| 出店方法 | 出店者募集の際は「お知らせ」ページでご案内します |
テナントスペース
エントランスを3つのテナントが囲み、回遊性の高いレイアウトとなっています。
(1スペースあたり15平米)
キッズスペース
未就学児(1歳以上)を持つ出店者は店内バックスペース内キッズスペースにて見守りベビーシッターが利用可能。
子どもを持つ女性の社会進出を応援しています。
共通基本設備
- 陳列棚(壁づけ)
- フィッティングルーム
- スポットライト
- POSレジ(ドロワー、レシートプリンター込み)
- Wi-Fi
- A看板
- ワークショップ用テーブルおよび椅子6脚
- シンク、冷蔵庫、電子レンジ、湯沸かし器
- 防犯カメラ(24時間録画)
※詳細はお問い合わせください。







